Предыдущий
Следующий
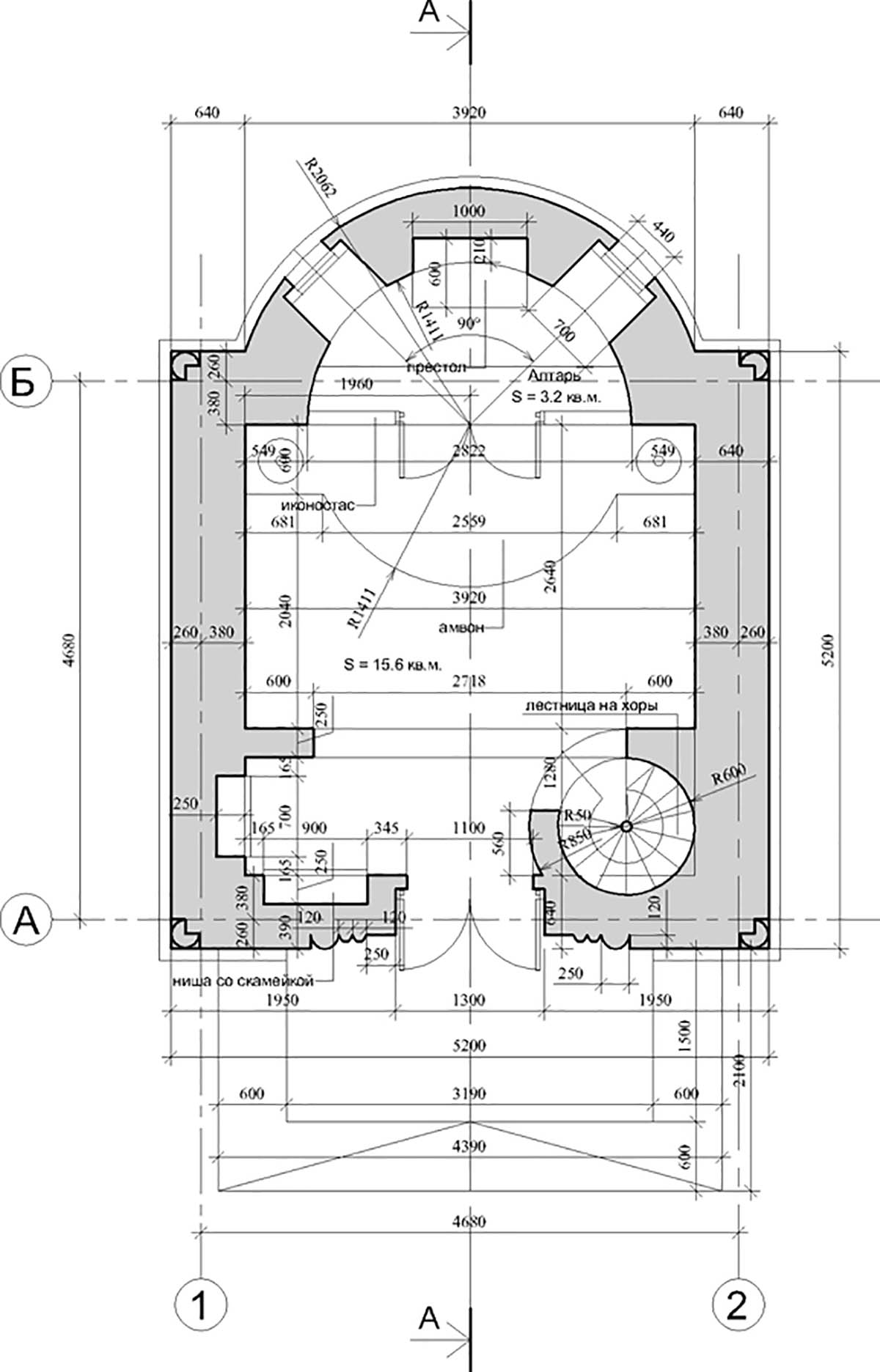
Храм-часовня в Лопотово
Проект Храма-часовни в Лопотово – лауреат престижной премии «Золотое сечение – 2007».
Приз присуждается за лучшие архитектурные проекты и реализации, публикации и научные работы по архитектуре Москвы, а также за особые заслуги в архитектурной практике, педагогике и теории.









